After Photo
       
     
After Photo
       
     
Rendering
       
     
Sample
       
     
Construction Drawing
       
     
AFTER PHOTO
       
     
AFTER PHOTO
       
     
RENDERING
       
     
CONSTRUCTION DRAWING
       
     
CONSTRUCTION DRAWING
       
     
After Photo
       
     
After Photo

Disjointed mirror entryway close up view.

2014

After Photo
       
     
After Photo

Disjointed mirror entryway wide view.

2014

Rendering
       
     
Rendering

3D modeling of construction method.

2014

Sample
       
     
Sample

Programming for custom CNC carved foam moulding profile.

2014

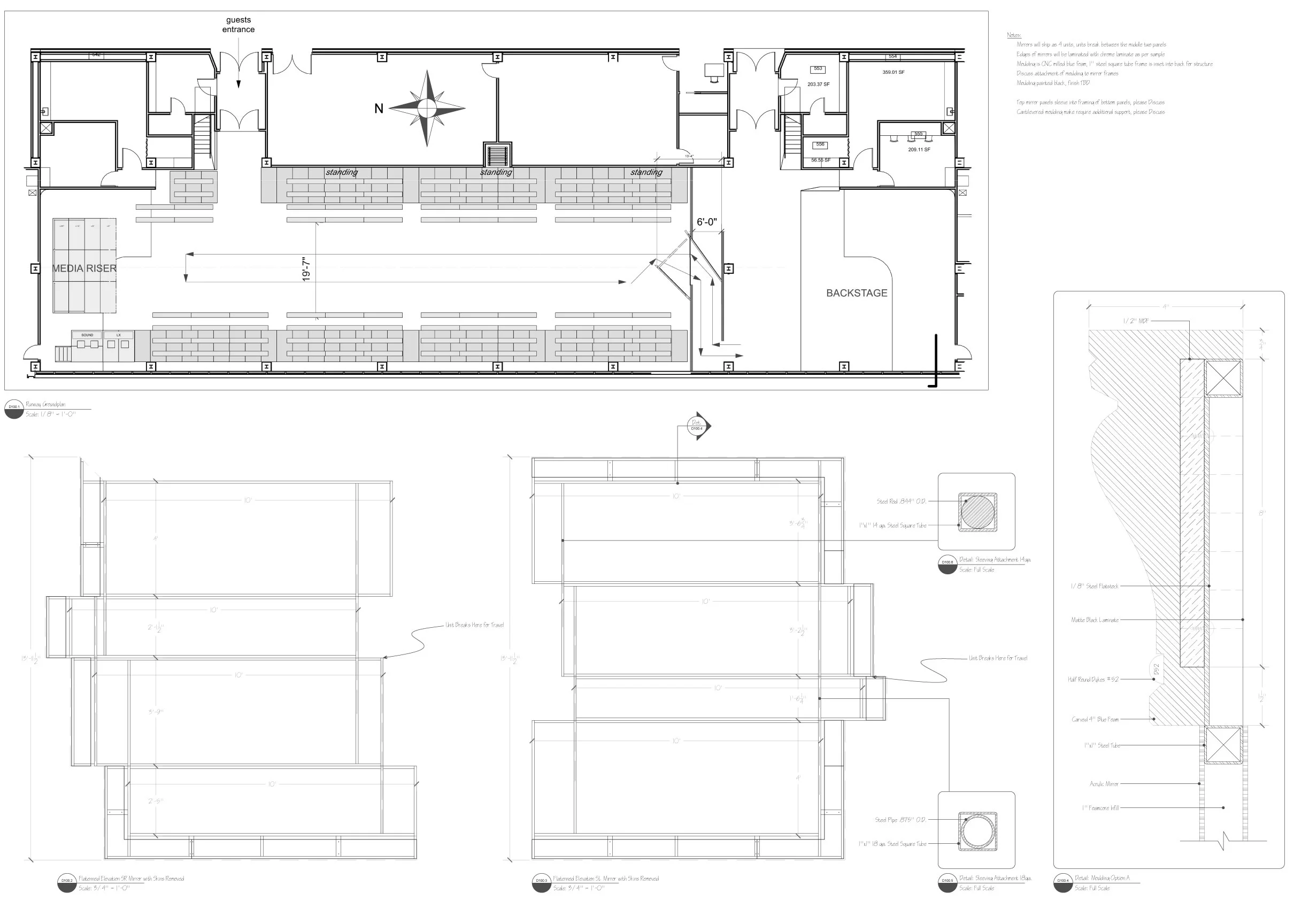
Construction Drawing
       
     
Construction Drawing

Groundplan, elevations and details for fashion event.  

2014

AFTER PHOTO
       
     
AFTER PHOTO

Entrance cube in partially closed position.

2013

AFTER PHOTO
       
     
AFTER PHOTO

Entrance cube in open position.

2013

RENDERING
       
     
RENDERING

Perspective of 3D model showing moving elements and framing.

2013

CONSTRUCTION DRAWING
       
     
CONSTRUCTION DRAWING

Elevations and details for entrance cube.

2013

CONSTRUCTION DRAWING
       
     
CONSTRUCTION DRAWING

Plans and details for entrance cube.

2013